1. හැඳින්වීම
This manual provides essential information for the safe and efficient assembly, operation, and maintenance of your Vente-unique EXPERTLAND ADELMO Galvanized Steel Garden Shed. Please read these instructions thoroughly before beginning assembly or use. Retain this manual for future reference.
2 ආරක්ෂිත තොරතුරු
සාමාන්ය ආරක්ෂණ අනතුරු ඇඟවීම්:
- එකලස් කිරීමේදී අත්වැසුම් සහ අක්ෂි ආරක්ෂාව ඇතුළුව සුදුසු පුද්ගලික ආරක්ෂක උපකරණ (PPE) සැමවිටම පළඳින්න.
- එකලස් කිරීමේ ප්රදේශය බාධාවන්ගෙන් සහ ළමයින්ගෙන් නිදහස් බවට වග බලා ගන්න.
- තද සුළං හෝ අයහපත් කාලගුණික තත්ත්වයන් යටතේ ගබඩාව එකලස් කිරීමට උත්සාහ නොකරන්න.
- Verify all parts are present and undamaged before starting assembly. Contact customer support immediately if any parts are missing or damaged.
- Securely anchor the shed to a level, stable foundation to prevent tipping or movement.
- Keep all sharp edges and small parts away from children.
- Do not store flammable liquids or hazardous materials inside the shed without proper ventilation and safety precautions.
3. නිෂ්පාදන ලක්ෂණ
The EXPERTLAND ADELMO garden shed is designed for outdoor storage, offering durability and functionality. Key features include:
- ද්රව්ය: Galvanized steel with a wood-effect finish for enhanced durability and aesthetic appeal.
- දොරවල්: Double sliding doors for convenient access and space-saving operation.
- වාතාශ්රය: Integrated ventilation grilles to ensure air circulation and reduce condensation, keeping stored items dry.
- කවුළුව: A PVC window (48 x 35 cm) provides natural light inside the shed.
- ප්රතිරෝධය: ජල-ප්රතිරෝධී ඉදිකිරීම්.
රූපය 3.1: බාහිර පෙනුම view of the EXPERTLAND ADELMO garden shed.
රූපය 3.2: පැත්ත view showing the integrated PVC window and wood-effect panels.
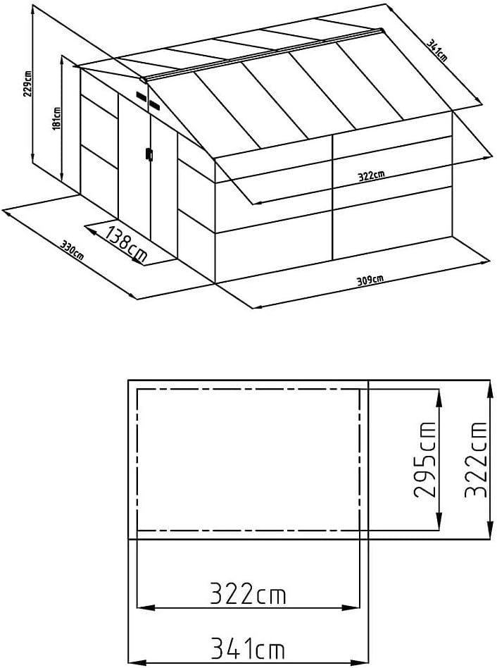
4. පිරිවිතර
| ගුණාංගය | වටිනාකම |
|---|---|
| ආකෘතිය | ADELMO |
| Exterior Dimensions (L x D x H) | 340 cm x 323 cm x 226 cm (10.98 m²) |
| Ground Dimensions (L x D) | 330 cm x 309 cm (10.19 m²) |
| දොර මානයන් (L x H) | 138 cm x 181 cm |
| වානේ ick ණකම | 0.25 මි.මී |
| ද්රව්ය | Galvanized Steel, Wood Effect |
| Window Material | PVC (48 x 35 cm) |
| බර | කිලෝ ග්රෑම් 120 කි |
| ජල ප්රතිරෝධය | දිය කාන්දු නොවන |
Figure 4.1: Dimensional diagram of the garden shed.
5. සැකසීම සහ එකලස් කිරීම
Assembly of the EXPERTLAND ADELMO garden shed requires careful attention to detail. It is recommended that two or more people perform the assembly.
5.1 අඩවි සකස් කිරීම
- Choose a level and stable site for the shed. A concrete slab or a well-compacted gravel base is ideal.
- Ensure adequate clearance around the shed for assembly and future access.
- ඕනෑම සුන්බුන්, පාෂාණ හෝ වෘක්ෂලතා ප්රදේශය ඉවත් කරන්න.
5.2 එකලස් කිරීමේ පියවර (සාමාන්ය මාර්ගෝපදේශ)
- කොටස් ඉවත් කර හඳුනා ගන්න: සියලුම සංරචක ප්රවේශමෙන් ඉවත් කර වෙනම එකලස් කිරීමේ මාර්ගෝපදේශයේ සපයා ඇති කොටස් ලැයිස්තුවට අනුව සත්යාපනය කරන්න.
- පාදක රාමු එකලස් කිරීම: Assemble the base frame on your prepared site, ensuring it is square and level.
- බිත්ති පැනල් ස්ථාපනය: Attach the wall panels to the base frame, following the numerical or alphabetical order indicated in the assembly guide. Secure panels using the provided fasteners.
- Roof Frame and Panels: Construct the roof frame and then attach the roof panels. Ensure all roof sections overlap correctly for water resistance.
- දොර සවි කිරීම: Install the double sliding doors into their tracks. Adjust as necessary for smooth operation.
- Window and Ventilation: Install the PVC window and ensure ventilation grilles are clear.
- නැංගුරම් දැමීම: Securely anchor the shed to the ground using appropriate anchoring hardware (not always included, may need to be purchased separately based on foundation type).
සටහන: Refer to the detailed graphical assembly instructions included with your product for specific step-by-step guidance and fastener details.
6. මෙහෙයුම් උපදෙස්
ස්ලයිඩින් දොරවල් 6.1ක්
The shed features double sliding doors for easy access. To open, gently slide one or both doors along their tracks. To close, slide them back until they meet in the center. Ensure the doors are fully closed to protect contents from weather.
Figure 6.1: Double sliding doors in the open position.
Figure 6.2: Double sliding doors in the closed position.
6.2 වාතාශ්රය
The integrated ventilation grilles are designed to provide continuous airflow. Do not block these grilles, as proper ventilation helps prevent moisture buildup and maintains the condition of stored items.
7. නඩත්තු කිරීම
නිතිපතා නඩත්තු කිරීම ඔබේ උද්යාන මඩුවේ ආයු කාලය දීර්ඝ කරයි.
- පිරිසිදු කිරීම: Clean the shed exterior periodically with water and a mild detergent. Avoid abrasive cleaners or harsh chemicals that could damage the galvanized finish.
- දොර මාර්ග: Keep the sliding door tracks clear of dirt, leaves, and debris to ensure smooth operation. Lubricate tracks with a silicone-based spray if movement becomes stiff.
- ගාංචු: Periodically check all screws and bolts for tightness, especially after strong winds. Tighten any loose fasteners.
- වාතාශ්රය ග්රිල්: Ensure ventilation grilles remain unobstructed to allow for proper airflow.
- පදනම: Inspect the shed's foundation and anchoring points annually to ensure stability.
8. දෝශ නිරාකරණය
මෙම කොටසින් ඔබේ උද්යාන ගබඩාව සම්බන්ධයෙන් ඔබට මුහුණ දීමට සිදුවිය හැකි පොදු ගැටළු සාකච්ඡා කෙරේ.
| ගැටලුව | විය හැකි හේතුව | විසඳුම |
|---|---|---|
| දොරවල් ඇලවී හෝ ලිස්සා යාමට අපහසුය. | Debris in tracks, bent track, lack of lubrication. | Clean tracks thoroughly. Check for bent sections and straighten if possible. Apply silicone lubricant to tracks. |
| ගබඩාව ඇතුළත ජලය කාන්දු වීම. | Improperly sealed panels, damaged roof, unlevel foundation. | Inspect all panel seams and roof overlaps. Apply silicone sealant if necessary. Ensure the shed is on a level foundation. |
| මඩුව අස්ථායී හෝ වෙව්ලන බවක් දැනේ. | Loose anchoring, unlevel ground, loose fasteners. | Verify all anchoring points are secure. Re-level the foundation if needed. Tighten all assembly fasteners. |
| ගබඩාව ඇතුළත ඝනීභවනය. | Blocked ventilation, high humidity. | Ensure ventilation grilles are clear. Consider adding a dehumidifier if humidity is consistently high. |
9. වගකීම් සහ සහාය
For warranty information or technical support, please contact Vente-unique customer service. Details regarding specific warranty periods and conditions are typically provided with your purchase documentation.
සබඳතා තොරතුරු: Refer to your purchase receipt or the Vente-unique webනවතම පාරිභෝගික සහාය සම්බන්ධතා තොරතුරු සඳහා අඩවිය.
සබැඳි සම්පත්: Visit the official Vente-unique website for additional product information, FAQs, and support resources: Vente-unique Store